20 Cassidy Trail, Coventry, RI 02816
- 4 beds |
- 3 baths |
- 2,906 sqft
Single-Family Home
Built in 2025
1.01acre lot
2 car garage
$307/sqft
Listed 3 months ago
Property Description
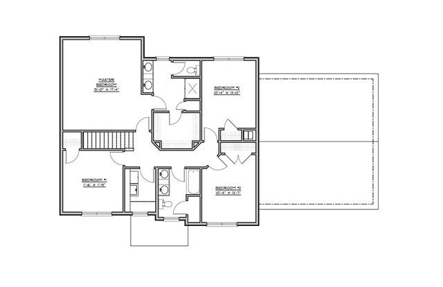
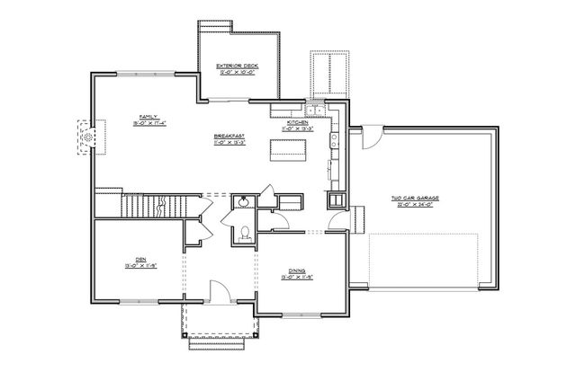
Coming soon to The Oaks at Hope Furnace: The Willow model is designed to offer space, style, and flexibility. Construction is set to begin soon, providing buyers the opportunity to secure this home now and watch it come to life over the coming months. The Willow features a versatile floor plan on the first floor, an open-concept kitchen with quartz countertops, a breakfast island, and a fireplaced family room ideal for gatherings. A formal dining room with tray ceiling and custom millwork, along with a private den or home office, add both elegance and function. A convenient drop-zone entry from the 2-car garage includes cabinetry, pantry, and coat closets to keep everyday living organized. Upstairs, the primary suite offers crown molding, recessed lighting, walk-in closet, and a beautifully appointed bath with tiled shower and double vanity. A finished bonus room provides endless possibilities for today’s lifestyle—media room, playroom, or guest retreat. Planned finishes also include hardwoods, detailed crown moldings, and an irrigation system. This home is conveniently located near the Centre of New England’s shopping and dining and the scenic Flat River Reservoir for year-round outdoor recreation.
- Listing Status:
- Active
- Date Added:
- August 30, 2025 at 05:00AM
- Listing Office:
- BHHS Commonwealth Real Estate : 401-886-6100
- MLS ID:
- 1393341

- General: PorchSprinkler/IrrigationPaved Driveway
- Style: Colonial
- Other Structures: Porch
- Parking: AttachedGarageGarage Door OpenerParking spaces: 6
- Windows: Thermal Windows
- General: DrywallVinyl Siding2Concrete Perimeter
- Originating MLS: RIS_RIS
- County: Kent
- Zoning: 20CASSIDYTRLCVEN
- Utilities: 150 Amp ServiceCircuit Breakers
- Water: Well
- Sewer: Septic Tank
- Source: RIS_RIS
This listing courtesy of BHHS Commonwealth Real Estate
Monthly Payment
- Principal & Interest $
- Property Taxes $
- Home Insurance $
- VA Funding Fee $
Location
Schools Nearby
Blackrock School
12 La Casa Dr, Coventry, RI, 02816
Grades KG-5
1.21 miles away
Alan Shawn Feinstein Middle School of Cov
15 Foster Dr, Coventry, RI, 02816
Grades 6-8
0.37 miles away
The Regional Career and Tech
40 Reservoir Rd, Coventry, RI, 02816
Grades 10-11
2.04 miles away






